図面作成業務とは
2次元CADを用いて各種申請用の図面を作成いたします。
「申請は自分でできるけど図面の用意が難しい」など、図面のみの作成依頼に対応した業務のご紹介です。
- 農地転用など農地法の許可申請に関する図面
- 開発行為許可など都市計画法上の申請に関する図面
- ガス・電気・水道など道路占用申請に関する図面
- 前面道路工事など施行承認申請、道路使用許可申請に関する図面
- その他CADで作成可能なさまざまな図面
などなど、各種平面図・断面図・縦断図の作成が可能です。
なお、納品はCADデータ、PDF、原本などお客様の指定の形態でご対応可能です。
.png)
多くの場合、申請と併せて図面を添付する必要があります。正確な図面は、正確な打合せや正確な工事の段取りに寄与するなど、目的達成までの工程を円滑にします。
それでは申請用の図面とはどのような図面を指すのか、事務所で作成したサンプル図面を一部ご紹介いたします。なお、サンプルの計画地は実際には存在しない架空の土地ですので予めご了承下さい。
各種図面はクリックすると拡大して閲覧できます。
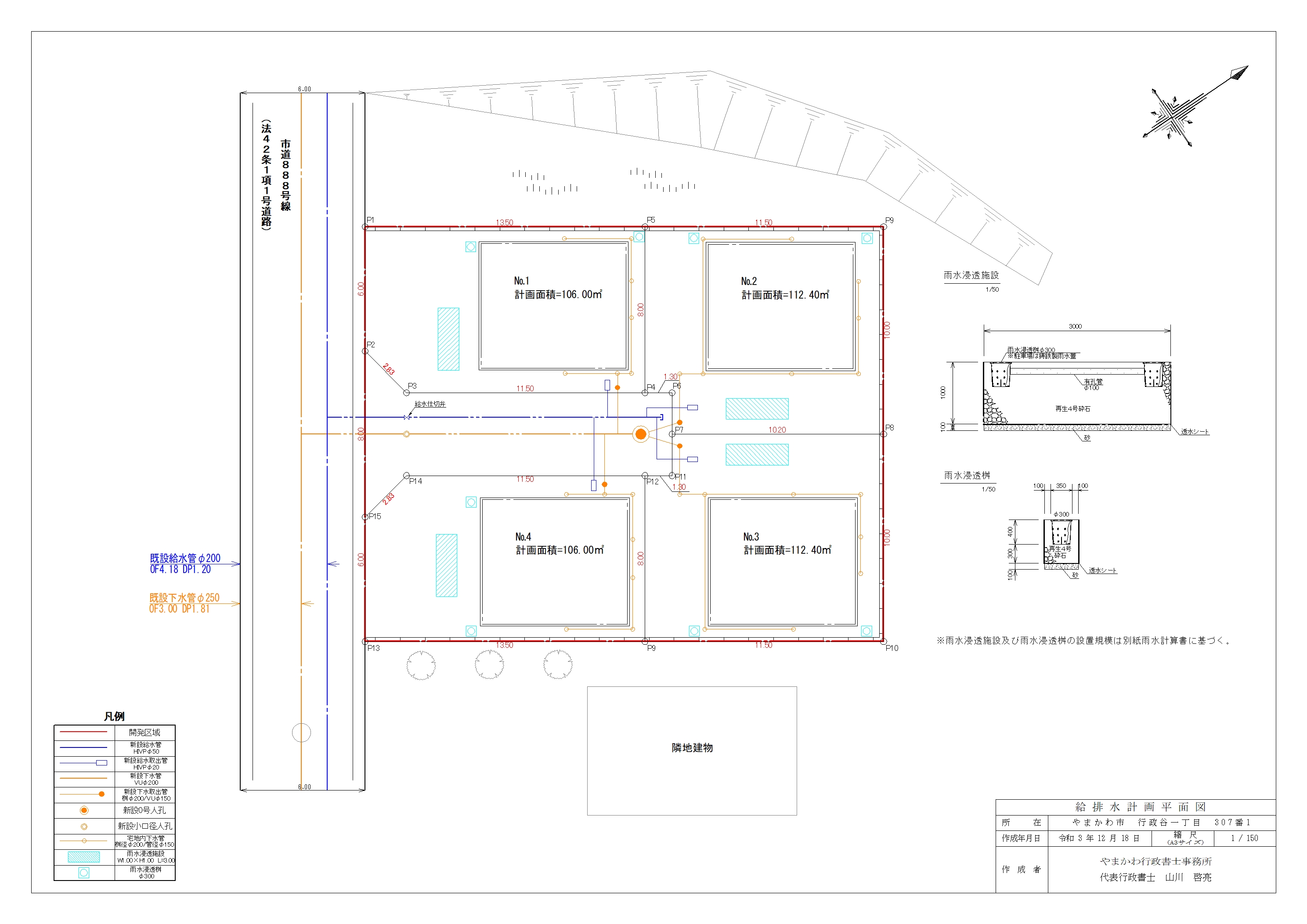
給排水計画平面図
上水道や下水道、雨水の排水設備などの給排水関係の図面です。水道課、下水道課などに提出し協議をします。雨水関係は河川課や道路課などが担当しています。近年のゲリラ豪雨により雨水の処理は特に重要な協議事項のひとつです。自治体により雨水処理の考え方は様々で、別途「雨水計算書」を作成しその計算書に基づいて雨水施設を検討します。
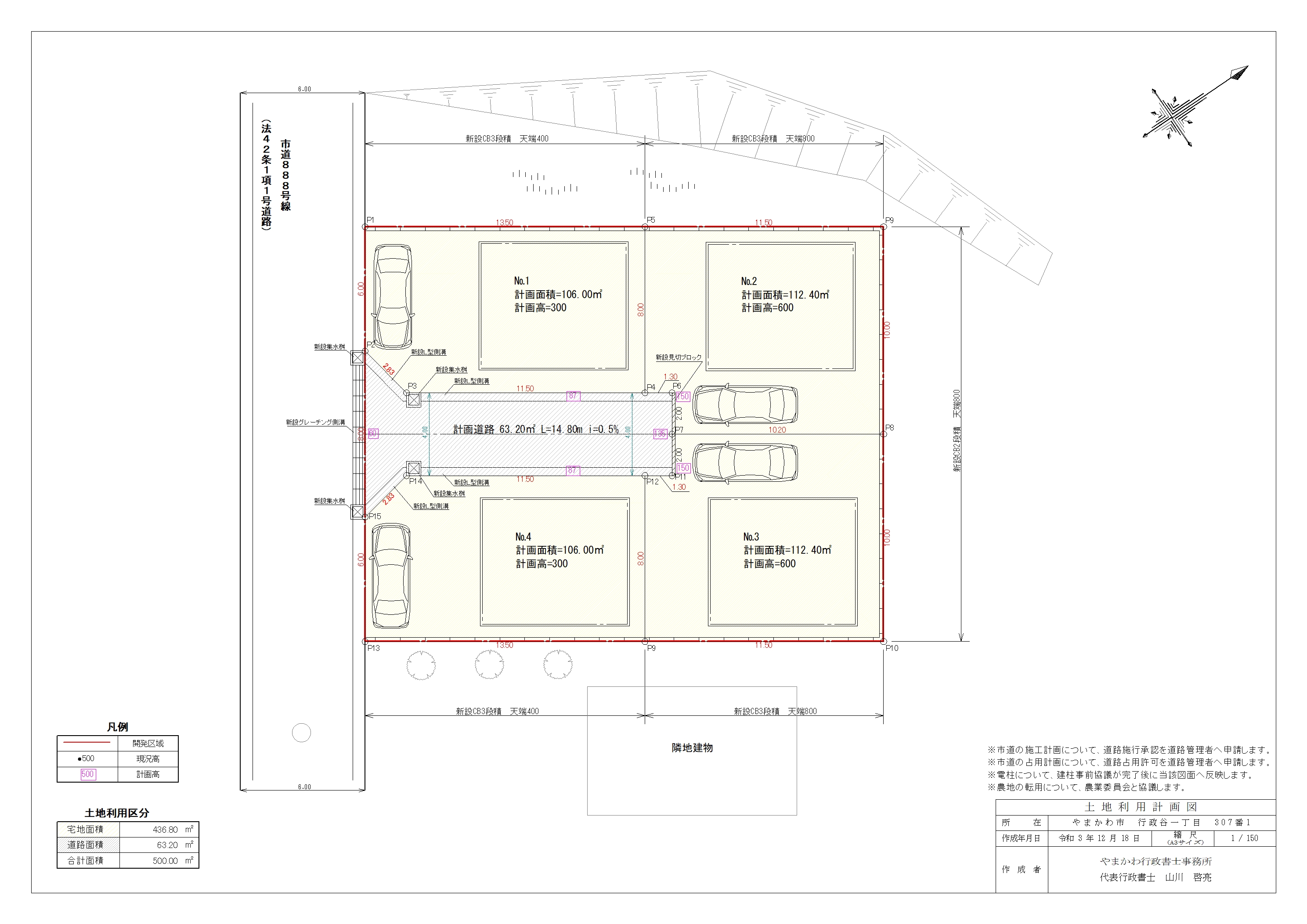
造成計画平面図
工事を計画する際には必ず計画の高さを設定しますので、その計画高さに対して既存の土をどうするのかという計画を立てるための図面です。いわゆる切土・盛土の計画を平面上で表し、完了(検査)時に土の状態がどうなっているのかを記載します。なお、建築時にも排出する土が出ますのでその部分を見越した計画の高さに設定する等、申請者様との打合せも重要になります。
道路縦断図
計画地に新設道路計画がある場合はこの断面図を作成します。
道路は建築計画においての非常に重要な要素ですので、自治体により厳格に基準が設けられ運用されています。幅員や勾配を始め道路内の雨水処理設置施設や設置部材など、多くの項目を図面に基づき協議していきます。また、当該道路を市町村に対して帰属できるか否かにより、道路の仕様や検査の有無も変わる場合があります。
上記の各種サンプル図面は、開発行為の許可申請時に主要な図面となっておりますが、世の中には申請の数だけ図面の種類も存在します。弊所は構造計算など専門的な計算に基づく図面、及び他の法律に制限のある図面の作成は行っておりませんが、通常の役所全般に提出する図面に関しては作成可能です。
「このような図面は作成可能ですか?」など、図面に関する質問はお気軽にお問い合わせください。
図面作成業務に関する説明は以上です。









